دریافت پکیج کامل صفر تا صد آموزش رویت استراکچر (سیستم گره ها) Revit Structure Adding joist systems به زبان فارسی در ادامه مطلب مراجعه بفرمایید.…
ادامه مطلببرای دانلود این دوره رویت استراکچر طراحی خرپا Revit Structure trusses به زبان فارسی، به لینک زیر مراجعه بفرمایید https://www.youtube.com/watch?v=SbWeLgPVOco Alright, let's clean this mess…
ادامه مطلببرای دانلود آموزش تغییر سریع مترال خرپا در نرم افزار رویت Revit Structure truss materials به زبان فارسی، به لینک زیر مراجعه بفرمایید https://www.youtube.com/watch?v=L2A9R-jUJ_4…
ادامه مطلببرای دانلود دوره جامع آموزش مدیریت رویت استراکچر (فاز گذاری) Revit Structure Phasing به زبان فارسی، با ما همراه باشید. https://www.youtube.com/watch?v=rRvn-I8cAuI I'd like to talk…
ادامه مطلببه آموزش به اشتراک گذاری فایل رویت استراکچر به زبان فارسی خوش آمدید. با ما همراه باشید تا صفر تا صد آموزش رویت استراکچر Revit…
ادامه مطلبدر این دوره آموزشی نرم افزار رویت استراکچر ، و در ادامه معرفی تب استیل ، میخواهیم نحوه شکستن یک اتصال را برسی کنیم. با…
ادامه مطلبدر این آموزش جامع رویت سازه، روش های طراحی و اضافه کردن بیس پلیت (پایه ستون) را به صورت صفر تا صد آموزش رویت استراکچر…
ادامه مطلبدر این آموزش صفر تا صد آموزش رویت استراکچر ، روش های افزودن یک ستون در نرم افزار رویت سازه Revit Structure column support را…
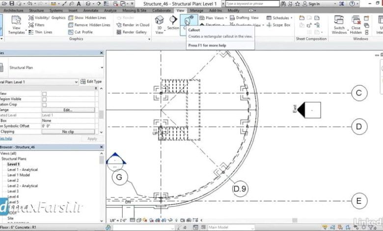
ادامه مطلببرای دانلود پکیج آموزشی ایجاد مقطع رویت استراکچر Revit Structure Sections callouts به زبان فارسی، به لینک زیر مراجعه بفرمایید. https://www.youtube.com/watch?v=6dX0FpzJCmE I know we've added…
ادامه مطلبدر این آموزش جامع و کاربردی 2018 Revit Structure نحوه طراحی تیر محیطی فلزی (Revit Structure perimeter beams) را یادخواهیم گرفت. آنچه که من می خواهم…
ادامه مطلب









