آموزش اتوکد 2 بعدی
صفر تا صد آموزش رویت استراکچر Revit Structure base plate

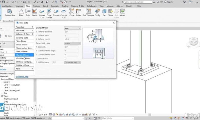
در این آموزش جامع رویت سازه، روش های طراحی و اضافه کردن بیس پلیت (پایه ستون) را به صورت صفر تا صد آموزش رویت استراکچر Revit Structure base plate خواهیم داشت. برای دانلود دوره کامل، به لینک زیر مراجعه بفرمایید
https://www.youtube.com/watch?v=s1of1uNM1nw
Let's look at some more connections The first one I'd like to add is a base plate Now the really good thing about this new functionalityبیایید به برخی اتصالات بیشتر نگاه کنیم. اولین موردی که می خواهم اضافه کنم، یک صفحه پایه است. اکنون چیز واقعا خوب در مورد این قابلیت جدید این واقعیت است که این اتصالات می دانند ... آنچه که واقعا در ارتباط هستند. به این معنی که اگر ستون تغییر اندازه شما باشد یا شکل ... پس صفحه پایه بیایید آن را انجام دهیم، بگذارید پرش کنیم و یک صفحه پایه اضافه کنیم. در پروژه ها، یک مدل ساختاری جدید را با استفاده از الگو ساختاری شروع کنیم. برو به مرحله 1 برو به برگه ساختار بروید به ستون برای این ستون من می خواهم برداشت کنم 24 دایره ای 30 مستطیل بتونی من فقط می خواهم آن را در مدل درست در اینجا قرار دهم آمار فرار از چند بار بگذارید ستون را دوباره کلیک کنید این بار من می خواهم W10 را با 33 بار بردارم ... من قصد دارم عمق من را به ارتفاع تغییر دهم و من آن را به سطح 2 ارسال می کنم ... حالا من آن را به مرکز این ستون دیگر می برم از دو بار گریختن فرار بیایید به یک 3D view بگذارید سطح جزئیات ما را به خوبی تغییر دهد ... به خاطر داشته باشید که باید این کار را انجام دهید یا این کارها نشان نمی دهد سبک بصری خود را به hidde تغییر دهید n خط برو به برگه فولاد در اتصال بر روی تنظیمات اتصال کلیک کنید



