در این آموزش، نحوه کار با کامپونت های نرم افزار رویت استراکچر Revit Structure Adding detail components و همچنین روش های اضافه کردن جزئیات به…
ادامه مطلبدریافت پکیج کامل آموزش رویت استراکچر عمران نوین (تنظیمات دیدگاه) Revit Structure View settings به زبان فارسی در ادامه مطلب مراجعه بفرمایید. https://www.youtube.com/watch?v=GvX6hU73lH8 What…
ادامه مطلبدریافت پکیج کامل آموزش کاربردی رویت استراکچر Revit Structure Perpendicular to face به زبان فارسی در ادامه مطلب مراجعه بفرمایید. https://www.youtube.com/watch?v=-foIQgFvqS0 Working with reinforcing I'd…
ادامه مطلبدریافت پکیج کامل آموزش رویت استراکچر عمران نوین Revit Structure Parallel to face به زبان فارسی در ادامه مطلب مراجعه بفرمایید. https://www.youtube.com/watch?v=Lcm7_ryGZXg Okay, it's time…
ادامه مطلببرای دانلود ویدئو آموزشی نحوه وارد کردن نقشه اتوکد به رویت استراکچر Revit Structure to AutoCAD به لینک زیر مراجعه بفرمایید. https://www.youtube.com/watch?v=g6uuIxkJTNQ OK, sometimes we…
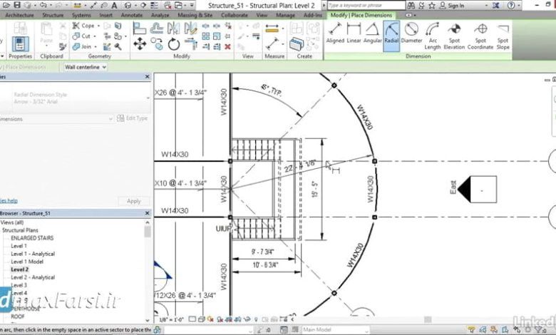
ادامه مطلببرای دانلود ویدئو آموزش نحوه اندازه گذاری رویت استراکچر Revit Structure dimensions به ادامه مطلب مراجعه بفرمایید. https://www.youtube.com/watch?v=aEGlG7ehCjU It's time to add some dimensions…
ادامه مطلببرای دانلود ویدئوی آموزشی طراحی و مدلسازی خرپا رویت استراکچر Revit Structure Howe trusses به لینک زیر مراجعه بفرمایید. https://www.youtube.com/watch?v=VTq-pblK0OM I'm gonna go all the…
ادامه مطلبدریافت پکیج کامل آموزش کاربردی رویت استراکچر Revit Structure Creating slab depressions به زبان فارسی در ادامه مطلب. https://www.youtube.com/watch?v=S8N4W6tfFk0 One last thing…
ادامه مطلبدریافت پکیج کامل آموزش کاربردی رویت استراکچر Revit Structure Cantilevering slab edges به زبان فارسی در ادامه مطلب https://www.youtube.com/watch?v=Grhwy6EhJDU Since we put our deck in…
ادامه مطلبدریافت پکیج کامل صفر تا صد آموزش رویت استراکچر (پیکره بندی اتصالات تیر) Revit Structure Configuring beam joins به زبان فارسی در ادامه مطلب ……
ادامه مطلب









