در این دوره نحوه طراحی دیوار و footings محافظ به زبان فارسی آموزش داده میشود. و با کلیه امکانات نرم افزار رویت استراکچر (Revit Structure…
ادامه مطلبدر این آموزش جامع صفر تا صد رویت استراکچر 2019 (طراحی فوندانسیون) میپردازیم به افزودن یک خانواده footing پلکانی رویت استراکچر به زبان فارسی.بنابراین پایه…
ادامه مطلبدر ادامه آموزش های مدلسازی و طراحی فونداسیون با نرم افزار رویت استراکچر ، در این قسمت آموزش تگ کردن فوتینگ پلکانی رویت استراکچر را خواهیم…
ادامه مطلبدر این آموزش تصویری نرم افزار رویت استرکچر ، میپردازیم به روش های افزودن فوتینگ پلکانی رویت سازه استرکچر به زبان فارسی. حالا که ما…
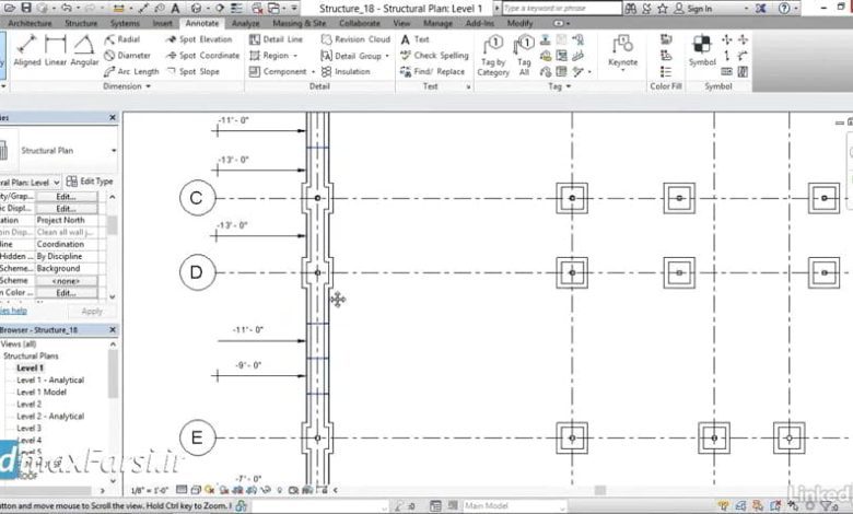
ادامه مطلبhttps://www.youtube.com/watch?v=xT0qa-c6kXU در این آموزش رویت استراکچر عمران نوین، میخواهیم نحوه ترسیم، طراحی و مدلسازی یک اسلب (دال بتنی) را در نرم افزار رویت استراکچر را…
ادامه مطلبhttps://www.youtube.com/watch?v=Jwi7y9l2NJE دانلود آموزش تصوری نرم افزار رویت مهندسی عمران, با مفهموم Shaft openings در رویت استراکچر Revit Structuree آشنا خواهیم شد.از آنجایی که ما یک…
ادامه مطلبدر این صفحه میتوانید تصاویر با دامنه برد وسیع اچ دی آر از شرکت (سی جی اکیس) CGAxis – HDRI Maps Collection Volume 1-7 رو…
ادامه مطلباین فایل دانلودی، حاوی 22 نوع تصویر اچ دی آر با آسمان آفتابی درخشان (3D Collective – Real Light 22 HDRI Pack Pro) است که…
ادامه مطلبدر این صفحه یکی از کامل ترین پکیج های تکسچر و متریال را از سایت Poliigon را منتشر میکنیم که حاول 615 نوع متریال مختلف…
ادامه مطلبhttps://www.youtube.com/watch?v=vAI9AxSEDjA در این فایل دانلودی آموزش سریع رویت میخواهیم نحوه طراحی آسانسور رویت استراکچر را آموزش دهیم.از آنجا که شفت آسانسور به طور کلی یک…
ادامه مطلب









