برای دانلود آموزش جامع صفر تا صد رویت استراکچر (طراحی تیر) Revit Structure beam systems با ما همراه باشید.همانطور که می بینید … ما به…
ادامه مطلبدر این آموزش جامع صفر تا صد رویت استراکچر عمران؛ میخواهیم نحوه اضافه کردن سیستم تیر (طراحی تیر و ستون) Revit Structure beam systems را…
ادامه مطلبhttps://www.youtube.com/watch?v=qBnEg-zLnAM Revit 2019 Structure (Adding steel columns to the model) Grids and Columns در این فیلم آموزشی، نحوه طراحی ستون فولادی رویت استراکچر را برسی…
ادامه مطلبhttps://www.youtube.com/watch?v=R3EgPPTVpx4 Revit 2019 Structure : Grids and Columns Adding grids to the model در این آموزش مقدماتی نرم افزار رویت، نحوه آموزش افزودن گرید…
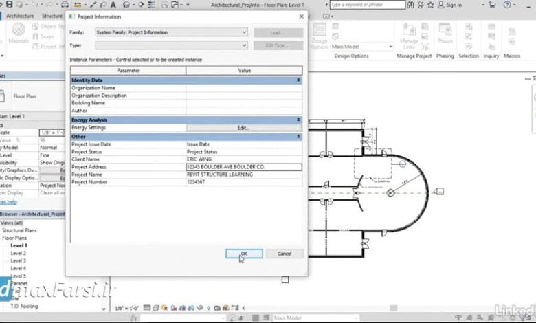
ادامه مطلبhttps://www.youtube.com/watch?v=FpGy-qyw1gE Revit Structure : Setting Up the Project : Transferring project standards در این دانلود آموزش سریع رویت، میخواهیم نحوه انتقال استاندارهای پروژه رویت استراکچر…
ادامه مطلبhttps://www.youtube.com/watch?v=tpEZOZKcwhE Revit 2019 Structure Setting Up the Project Creating view templates در این فیلم آموزش نرم افزار revit structure، میخواهیم نحوه ساخت و ویرایش ساخت…
ادامه مطلبhttps://www.youtube.com/watch?v=h8pn_Ck9x_o Revit Structure Adding and setting up structural views در این ویدئو آموزشی میپردازیم به آموزش ویو سازه رویت استراکچر ببینیم دیدگاه های ما چگونه…
ادامه مطلبhttps://www.youtube.com/watch?v=uQpkUT_79YM Revit 2019 Setting Up the Project Copy monitor در این دانلود آموزش سریع رویت میخواهیم مانیتورینگ کپی را برسی کنیم. فقط به این دلیل…
ادامه مطلبhttps://www.youtube.com/watch?v=RdPxJZPO3Zw در این دوره آموزش رویت مقدماتی؛ نحوه آموزش ساخت طبقات رویت استراکچر را برسی خواهیم کرد.حالا که مدل معماری ما به مدل خالی ما…
ادامه مطلبhttps://www.youtube.com/watch?v=rxB0KnbbvrA Revit 2019 Structure Setting Up the Project Linking architecture در این آموزش تصویری رویت، به نحوه لینک کردن به فایل معماری رویت استراکچر به…
ادامه مطلب









