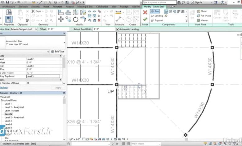
برای دانلود ویدئو آموزشی مدلسازی پله رویت استراکچر Revit Structure stairs (نحوه پله زدن در رویت) به لینک یر مراجعه بفرمایید https://www.youtube.com/watch?v=9m6mi6Na-8o Okay, let's dig…
ادامه مطلببرای دانلود ویدئو آموزشی نحوه افزودن یک C shapes به استرینگر در نرم افزار رویت استراکچر به زبان فارسی (Revit Structure Adding C shapes to…
ادامه مطلبدریافت پکیج کامل آموزش کاربردی رویت استراکچر Revit Structure free-form rebar به زبان فارسی در ادامه مطلب مراجعه بفرمایید. https://www.youtube.com/watch?v=U5_WkKpFMNI Revit has added a little…
ادامه مطلبدریافت پکیج کامل آموزش کاربردی رویت استراکچر Revit Structure Adding area reinforcing به زبان فارسی در ادامه مطلب مراجعه بفرمایید. https://www.youtube.com/watch?v=eViOrvrSabc The last type…
ادامه مطلبدریافت پکیج کامل آموزش کاربردی رویت استراکچر Revit Structure custom decking به زبان فارسی در ادامه مطلب مراجعه بفرمایید. https://www.youtube.com/watch?v=VfNEP2CmcDg Revit comes pre-loaded with several…
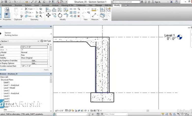
ادامه مطلبدریافت پکیج کامل آموزش کاربردی رویت استراکچر Revit Structure Creating thickened slabs به زبان فارسی در ادامه مطلب https://www.youtube.com/watch?v=BfZzIP7_BXk So we need to thicken our…
ادامه مطلبدریافت پکیج کامل آموزش رویت استراکچر Revit Structureconcrete floor steel decking به زبان فارسی در ادامه مطلب . https://www.youtube.com/watch?v=YOpeP6wOMjY The next type of floor I…
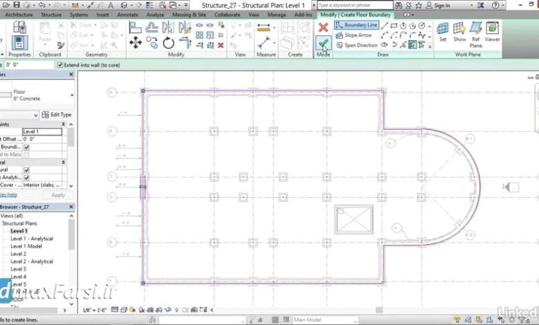
ادامه مطلبدریافت پکیج کامل صفر تا صد آموزش رویت استراکچر Revit Structure Creating a slab on grade به زبان فارسی در ادامه مطلب … https://www.youtube.com/watch?v=tyyEYllIZDY Let's…
ادامه مطلبدر این آموزش رویت استراکچر، نحوه تغییر دادن ارتفاع های تیر ستون ها Revit Structure beam elevations را فراخواهیم گرفت. برای دانلود صفر تا صد…
ادامه مطلبدر این آموزش، نحوه Copy paste aligned کردن در نرم افزار رویت استراکچر به زبان فارسی را فرا خواهید گرفت. https://www.youtube.com/watch?v=qjXUpQXXv9E Now, this…
ادامه مطلب









